2017-11-01から1ヶ月間の記事一覧

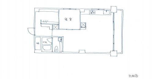
【中古マンション×リノベーション 04】リノベーション打ち合わせ~提案プラン編~

皆様、こんにちは。中古マンションマンです。 中古マンションをこよなく愛する、中古マンションマンです。 今回もリノベネタです。前回の投稿では、リノベーションをする上での要望と、現状の物件の制約について書きましたが、今回、ついに間取りの話に入り…

【中古マンション×リノベーション 03】リノベーション打ち合わせ~要望と現状編~

皆様、こんにちは。中古マンションマンです。 中古マンションをこよなく愛する、中古マンションマンです。 無事に中古マンションを購入しまして、リノベーションの打ち合わせを進めております! 今回は、・間取りを作る上でどのような要望を持っていたのか・…

【中古マンション×リノベーション 02】購入までの怒涛の8日間

皆様、こんにちは。中古マンションマンです。 中古マンションをこよなく愛する、中古マンションマンです。 先日の投稿で、中古マンションを購入したことをご報告しました。今回は、物件情報を入手してから売買契約に至るまでの、怒涛の8日間についてまとめて…